Zielschildtafel

Aus Straßenbahnjournal-Wiki
Zur Navigation springenZur Suche springen

Beschreibung

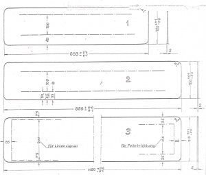
Abmessungen der Zielschildtafeln

Bei einer Zielschildtafel handelt es sich um eine weiß lackierte 2 mm dicke Aluminiumblechtafel, die im Zielschildkasten jedes Straßenbahnzuges angebracht war und das Fahrziel meistens in schwarzer Schrift angezeigt hat. Es gab aber auch verschiedentlich Beschriftungen in roter Schrift.

Es gab Zielschildtafeln in drei verschiedenen Größen.

693 x 180 mm für die Typen A, C1, E, E1, c, c1, c2, c3 und c4.
855 x 180 mm für die Typen B, C, D, D1, L, L3, L4, T1, T2, b, c, k6, l und l3.
1180 x 215 mm für die Stadtbahnwagen der Type N1.

Im Allerheiligenverkehr wurden färbige Zielschildtafeln eingesetzt, wobei grüne Tafeln Züge über Gudrunstraße - Geiselbergstraße, rote Züge über Weiskirchnerstraße - Landstraßer Hauptstraße und die normalen weißen Züge über Rennweg kennzeichneten.


zurück zu: Fachbegriffe