Type UDL
Aus Straßenbahnjournal-Wiki
Zur Navigation springenZur Suche springen

Allgemeines
- U-Bahn-Diesellokomotive
- Einsatz: U-Bahn
Wagennummer
- 6914
Baujahr
- 6914 (Baujahr 1994)
Lieferfirma
- 6914 Jenbacher Transportsysteme A. G.
Technische Daten
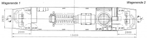
- LüP: 14090 mm
- Kastenbreite: 2500 mm
- Radstand im Drehgestell: 2000 mm
- Drehgestellmittenabstand: 6900 mm
- Gewicht: 35000 kg
- Leistung: 4 x 110 kW
- v/max: 60 km/h
- Antrieb: dieselelektrisch
Geschichte
Als Arbeitsfahrzeug für die U-Bahn lieferte Jenbacher Transportswysteme A. G. eine vierachsige Lokomotive, die mit einem abgasarmen Dieselmotor JW 216 DS mit Direkteinspritzung und Abgasturbolader als Energieliferant ausgerüstet war. Die elektrische Ausrüstung besorgte die Fa. Elin mit flüssigkeitsgekühltem GTO-Pulswechselrichter. Die Drehgestelle und die Drehstrom-Fahrmotoren stammen von der U-Bahn-Type U1. Auf eine Direktanspeisung aus der Stromschiene wurde verzichtet. Die Lok ist LZB-kompatibel und in der Lage eine Sechswagen-U-Bahngarnitur abzuschleppen.
Statistik
| Nummer | Firma | Instandnahme | Ausgemustert | Anmerkung |
|---|---|---|---|---|
| 6914 | Je | 15 12 1994 |
zurück zu: Aktuelle Arbeitsfahrzeuge